info@snjelecdesign.lk +94 71 191 3026

Power supply - 32A 3Phase 

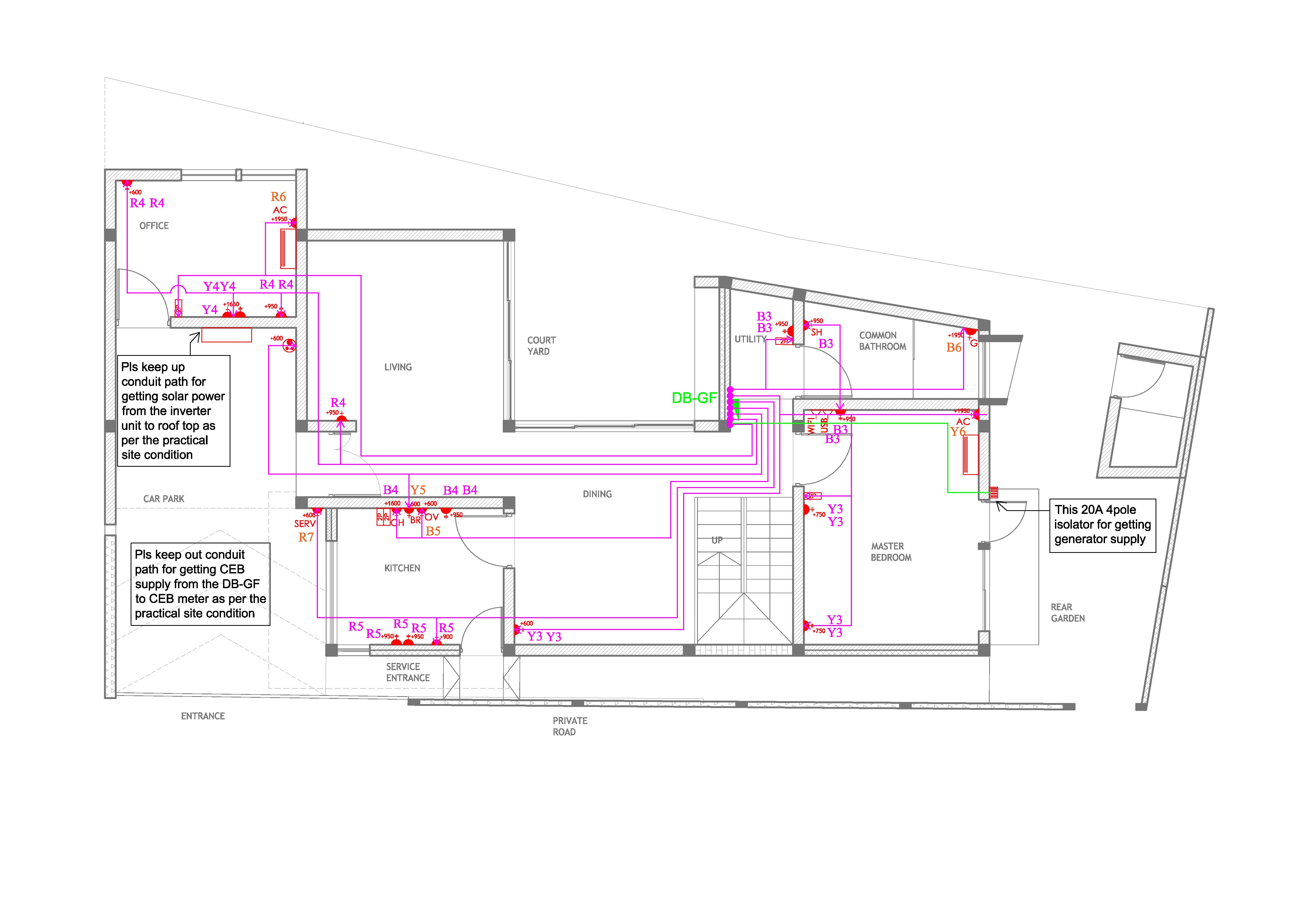
Structure (2308sqft)

Ground floor

Office / Car porch / Living / Court yard / Utility / Kitchen / Dining / M.bed room / Bath room

First floor

TV lobby / 2nos bed room / Store / Bath room 

Architectural & 3D Design by

Bhumi architecture studio

E100 House

Location
: Homagama
Status
: Completed